Một thiết kế kiến trúc khá độc đáo tại vùng ngoại ô phía nam của thị trấn Thiva, Hy Lạp chính là điểm đến kiến trúc hôm nay của chúng ta. Căn nhà một tầng với tầng hầm được xây dựng cho một đôi vợ chồng trẻ cùng 2 con nhỏ. Nó khá hoàn hảo và phù hợp với mục đích sử dụng của họ.
Kiến trúc sư thiết kế căn nhà một tầng thấp, tối đa hóa 205 m2 diện tích sàn. Nó không chỉ đáp ứng được hết chức năng mà còn mang lại yếu tố thẩm mỹ. Tầng hầm có các chức năng khác như làm kho lưu trữ đồ đạc, phòng sưởi, phòng giặt là và là nơi để xe. Ngôi nhà được xây theo hình chữ U tiện lợi được bao quanh bởi một cái sân khá rộng, đây là không gian mà gia đình có thể có những phút giây tuyệt vời bên nhau.

Mặt tiền của thiết kế biệt thự này khá đơn giản nhưng vẫn toát lên vẻ tinh tế, sang trọng vốn có.

Bằng cách sử dụng khá nhiều kính ở mặt tiền khiến cho căn nhà trở nên thoáng mát và rộng rãi hơn rất nhiều. Thêm vào đó, nó có thể đón được ánh sáng tự nhiên vào nhà. Phía ngoài được bố trí một bể bơi rất tiện lợi, nó sẽ giúp bạn có những giây phút thư thái, đắm mình trong làn nước mát.

Sàn gỗ trang trí được sử dụng ở phía ngoài của căn nhà trông khá mộc mạc nhưng vẫn không kém phần thú vị.

Cùng khám phá gần với phía trong của ngôi nhà nhé. Khu vực này trông thật hiện đại với việc sử dụng một cái lưới màu đen kết hợp với mái lợp trong suốt.

Cây cối được đưa vào khuôn viên một cách khá tinh tế.

Bạn có thể thấy được nhiều phong cách kiến trúc khác nhau được kết hợp tạo nên sự hấp dẫn của ngôi nhà.

Hãy nhìn vào cầu thang. Nó dẫn đến tầng hầm của ngôi nhà. Bạn cũng có thể thấy ở đây việc sử dụng các vật liệu khác nhau như cả gỗ và thủy tinh.

Thiết kế nội thất hiện đại của căn nhà cũng khá mới mẻ, không sử dụng quá nhiều màu sắc gây rối mắt. Chủ yếu những màu tone trầm được sử dụng nhiều tạo nên vẻ ấm cúng cho bên trong căn nhà. Khu vực bàn ăn với thiết kế ghế khá lạ mắt cùng 2 tone màu tương phán nhưng khá phù hợp với chiếc bàn gỗ đầy sự mộc mạc, giản đơn.

Cửa sổ kính cố định không chỉ cho cái nhìn tốt với toàn cảnh bên ngoài mà còn làm cho nội thất căn nhà trở nên ấm cúng hơn.

Những chiếc ghế trong suốt màu đỏ được đặt tại khoảng hiên nhà. Mọi người có thể ngồi ở đây vừa trò chuyện vừa hóng gió. Cùng với đó là việc bố trí rất khéo léo những chiếc đèn chiếu sáng gần những cây cảnh làm cho không gian sân vườn buổi tối càng trở nên thú vị hơn.

Ở góc này, bạn có thể thấy kiến trúc của ngôi nhà khá hiện đại vì nó chủ yếu sử dụng các đường nét đơn giản, tinh tế. Chính điều này cũng góp phần tạo nên vẻ đẹp cho căn nhà.

Đây là mặt phía tây của ngôi nhà, ngay sát đường đi. Bạn có thể thấy ở đây việc sử dụng các vật liệu khác nhau cho ngoại thất của ngôi nhà.

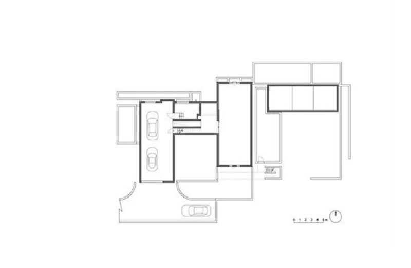
Bạn có thể xem qua bản vẽ kỹ thuật của tầng hầm ngôi nhà bao gồm garage ô tô và các khu vực khác.

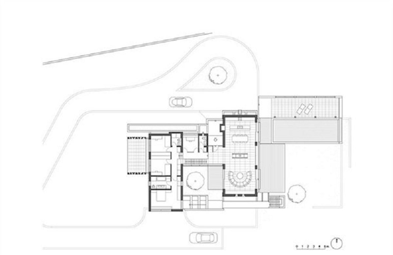
Còn đây là bản vẽ thiết kế tầng 1 của ngôi nhà. Nó cho thấy cách kiến trúc sư phân phối các khu vực khác nhau khá tốt và hài hòa.
Thiết kế căn nhà làm toát lên đặc điểm của căn nhà mang hơi hướng thiết kế vùng nông thôn. Chúng ta có thể thấy điều này trong việc sử dụng vật liệu xây dựng bằng kim loại màu xám cho mái nhà, ván sơn trắng và lớp phủ ngoài bằng đá. Ngoài ra, bạn cũng có thấy nét đặc trưng ấy thông qua nội thất với một không gian duy nhất có chứa bếp và vị trí lò sưởi giữa khu vực ăn uống và phòng khách. Vậy bạn có muốn tham khảo kiến trúc này cho căn nhà của mình không? Hãy cân nhắc.
Ở bài viết sau, chúng ta sẽ tìm hiểu về thiết kế biệt thự Cần Thơ để thấy rõ hơn xu hướng thiết kế hiện nay ở nước ta đang diễn biến như thế nào.
Nguồn: homedesignlover